泉州新店_光合植所

泉州新店_光合植所
阿制Photosynthetic plant/泉州植物植物空间
2022/05/07
光合植所所传递给客人们的是:放慢节奏,享受当下。来到这里的顾客,不论工作和生活的繁忙与疲惫,来到这里,吃些简餐,泡壶好茶或是约三五好友一起美美的小酌一杯,忘却疲惫,完全享受当下的身心愉悦。光合植所希望顾客在这里能够得到舒适的体验,认识一些热情有爱的人们。
The message from photosynthetic Plant is to slow down and enjoy the moment. Customers who come here, regardless of busy and tired work and life, come here to have some simple meals, make a pot of good tea or have a beautiful drink with some friends, forget exhaustion, fully enjoy the present physical and mental pleasure. We hope customers can have a comfortable experience here and get to know some warm and loving people.
▼店铺外观,exterior view © 阿制
▼入口陈列,Entrance display © 阿制
入口处的墙面陈列,采用拱门隔板的方式是为了多利用竖向空间来陈列产品,以缓和活动区的空间。
The metope of the entrance is displayed, the way of using archway clapboard is to use vertical space to display products more, in order to ease the activity area of the activity area.
▼泡茶区,Tea making area © 阿制
▼休息区,Rest area © 阿制
体验
Experience
这是个不算大的空间,我们试图传达给顾客年轻,简约自然的体验感。我们希望它和以往的精致的酒吧不同,慢下来享受。
This is not a big space. We try to convey to our customers the feeling of young, simple and natural experience. We hope it is different from the exquisite bar in the past. Slow down and enjoy it.
▼休息区,Rest area © 阿制
功能
Function
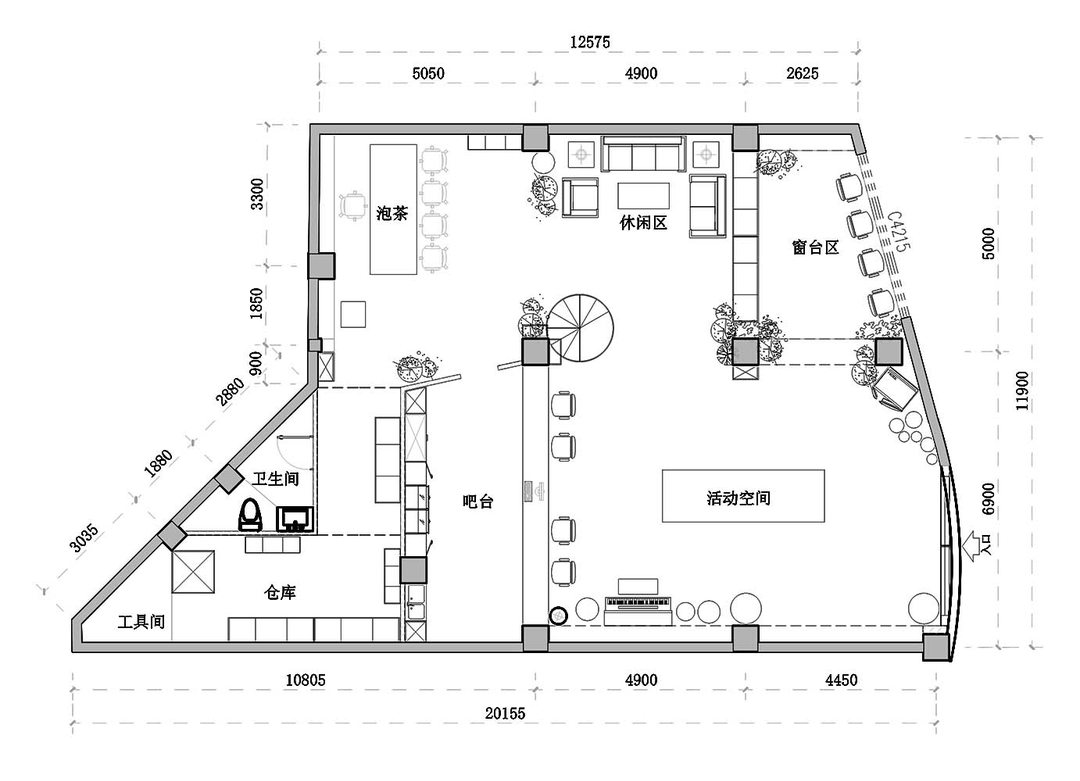
空间上为了承载顾客之间不同的互动关系,我们大致分为了四个区域:大厅活动、吧台卡座区、包厢区,吧台区和VIP区。在卡座的背后我们设置了后厨和卫生间的区域,由于空间有限,我们为这个空间搭建了第二层作为vip包间。
In order to make sure different interaction between customers, we are roughly divided it into four areas: hall booth area, round booth area, bar area and VIP area. Behind the circular booth, we set up the kitchen and toilet area. Due to the limited space, we set up the second floor as the VIP private room.
▼吧台区,the wine bar © 阿制
▼材料五行
Material & The Five Elements
从材料视觉上,我们尝试从中国文化阴阳五行的视角,来实现了材料的再分配。水磨石的土性,不锈钢的金性,玻璃的水性,暖色灯光的火性,以及草地绿植和木地板的木性,形成了木生火,火生土,土生金,金生水的五行循环。
From the perspective of material vision, we try to realize the redistribution of materials from the perspective of Yin-Yang and five elements of Chinese culture. The earth property of terrazzo, the gold property of stainless steel, the water property of glass, the fire property of warm color light, and the wood property of grassland green plants and wood floor form the five element cycle of wood generating fire, fire generating soil, earth generating gold and gold generating water.
▼平面图,plans © 阿制
▼剖面图,section © 阿制
















